Située à Ajax, une ville à la frontière est de Toronto, la maison a été construite dans les années 1980 sous la folie du développement de masse avec des éléments structurels excessifs tels que des colonnes et des poutres dans l'espace.
« C'est un site tellement exigeant. Nous avons été surpris de voir sept colonnes flotter au milieu du rez-de-chaussée dans une surface au sol de 850 pieds carrés.
Nous avons dû incorporer les éléments structurels dans la fonction et l'esthétique de la conception en minimisant l'encombrement visuel de l'état existant et en créant efficacement une expérience de vie minimale et confortable », a noté Andrew Sun.
Le foyer dispose d'un recoin accueillant enveloppé de panneaux de bois, intégrant des banquettes, un meuble à chaussures et un placard, créant une ambiance cosy à l'entrée de la maison. Attenant au foyer, un escalier flottant devient le prolongement de la menuiserie.
Un mur d'escalier en panneaux de bois agit non seulement comme un panneau d'intimité qui épouse le support structurel de l'escalier, mais devient également la toile qui capture la belle ombre qui se dégage des marches.
Dans le salon, une poutre centrale et une colonne sont enveloppées de finitions en bois, avec des détails d'accent de couleur bronze en haut et en bas. Cela agit comme une pièce sculpturale qui libère la plupart des murs porteurs d'origine dans l'espace.
Le salon et l'espace de travail se trouvent d'un côté du plan d'étage ouvert et sont conçus avec des menuiseries en bois, qui intègrent des rangements, des présentoirs et des tables rabattables. La cuisine et la salle à manger recouvertes de panneaux de bois sont situées de l'autre côté. Des portes escamotables en bois mènent au garde-manger caché, à une douche pour chien et à une entrée séparée du garage.
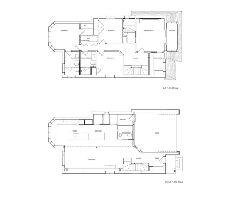
Avec une configuration de quatre chambres et trois salles de bains au 2ème étage, la conception est toujours capable de capturer l'atmosphère hospitalière de l'espace.
L'accent mis sur les matériaux naturels, les détails délicats et l'artisanat complexe dans tout l'espace reconnecte le propriétaire à un style de vie apaisant et paisible.
Fiche technique
Nom du projet : Maison Harty
Lieu : Ajax, Ontario, Canada
Architect / Designer: Atelier Sun
Équipe : Andrew Sun, Cherie Yang, Nassila Oudahmane, Jacqueline Horne
Ouvrier de menuiserie : Gold Palace Woodworking
Escaliers : D2 Menuiserie
Entrepreneur : image de l'eau
Date d'achèvement : août 2022
Photos : Joël Esposito
Superficie : 1700 pieds carrés
À propos de l'Atelier SUN
Situé à Toronto, au Canada, Atelier SUN est un studio de design multidisciplinaire fondé par Andrew Sun en 2019 pour se concentrer sur l'architecture d'intérieur et le design d'intérieur. Chaque projet vise à découvrir la signification essentielle de l'espace qui a un lien fort avec la culture, la fonctionnalité et l'esthétique locales.
Avec un fort accent sur l'expérience, la fonctionnalité et l'esthétique, Andrew a 15 ans d'expérience de travail sur divers projets de gamme pour l'hôtellerie, la vente au détail et les clients résidentiels. En tant que designer architectural et d'intérieur, Andrew est motivé par le concept, la séquence spatiale, les matériaux et l'esthétique.
Les distinctions comprennent un prestigieux prix de mérite ARIDO 2015, ainsi que la reconnaissance en tant que Best of Canada 2016 en résidentiel par le magazine Canadian Interior. Atelier SUN a également été reconnu comme l'un des 30 meilleurs cabinets de design d'intérieur émergents par Azure Magazine pour Canada 150.
Andrew est diplômé de l'Ontario College of Art and Design en 2008 et est un designer d'intérieur enregistré auprès de l'Association of Registered Interior Design.
v2com-newswire.com











