La firme a commencé par associer quelques images des rues et des bâtiments de la ville de montagne, des expériences tridimensionnelles et magiques, hautes et basses, riches et surprenantes.
Ils ont associé ces images à d'autres images d'étals de rue denses, humides, étouffants, chaleureux et bruyants, à l'ombre de grands Ficus macrocarpa.
Chongqing est située dans la partie orientale du bassin du Sichuan, où les nuages sont épais et le nombre d'heures d'ensoleillement est le plus faible de Chine ; les fleuves Yangtze et Jialing apportent beaucoup de vapeur d'eau ; la culture des quais et la culture des immigrants qui ont commencé avec la récupération du Sichuan par Huguang injectent une grossièreté et une droiture uniques dans la région.
Avec cette impression des "caractéristiques régionales" de Chongqing, le Studio DOCOF a commencé sa conception.
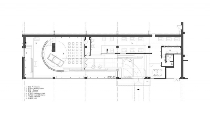
Les concepteurs ont laissé plus d'espace ouvert dans le hall d'entrée pour recevoir les visiteurs et pour répondre aux exigences de largeur pour les voitures entrant dans la salle d'exposition. Les visiteurs peuvent avoir un aperçu global de l'espace.
Les sols des espaces est et nord sont surélevés et les visiteurs peuvent emprunter les escaliers pour découvrir une salle de réunion vitrée.
De là, le flux de l'exposition se poursuit vers le côté nord de la salle d'exposition, où les zones les plus sombres sont utilisées pour afficher certains des produits du client avec des effets de lumière. Là, les visiteurs rencontrent deux murs avec des ouvertures.
Le mur supérieur bloque les vues pour maintenir l'attention sur les expositions, tandis que le mur inférieur et ses ouvertures permettent aux gens de surplomber le foyer au sud.
Après avoir terminé la visite à ce stade, les visiteurs doivent redescendre au niveau du hall, où l'expérience du visiteur est rectifiée et les vues s'ouvrent à la fois sur le passage surélevé du côté ouest et sur le hall.
Les visiteurs peuvent ensuite emprunter le passage des marches du côté ouest pour accéder à l'espace d'exposition et à la salle de conférence.
L'itinéraire est divisé en deux volets, soit en descendant deux marches pour atteindre la salle de conférence semi-circulaire, soit en suivant le bord extérieur du cercle pour entrer par le côté nord de la salle de conférence.
La salle de conférence est principalement utilisée pour les lancements de voitures d'exposition et les conférences. Les concepteurs ont utilisé le demi-cercle pour étendre la largeur de l'espace et ont disposé le film de plafond illuminé sur le dessus pour créer une intention "ouverte" dans l'espace intérieur limité.
Les visiteurs peuvent ensuite emprunter le passage des marches du côté ouest pour accéder à l'espace d'exposition et à la salle de conférence.
L'itinéraire est divisé en deux volets, soit en descendant deux marches pour atteindre la salle de conférence semi-circulaire, soit en suivant le bord extérieur du cercle pour entrer par le côté nord de la salle de conférence.
La salle de conférence est principalement utilisée pour les lancements de voitures d'exposition et les conférences. Les concepteurs ont utilisé le demi-cercle pour étendre la largeur de l'espace et ont disposé le film de plafond illuminé sur le dessus pour créer une intention "ouverte" dans l'espace intérieur limité.
Les visiteurs peuvent ensuite emprunter le passage des marches du côté ouest pour accéder à l'espace d'exposition et à la salle de conférence.
L'itinéraire est divisé en deux volets, soit en descendant deux marches pour atteindre la salle de conférence semi-circulaire, soit en suivant le bord extérieur du cercle pour entrer par le côté nord de la salle de conférence.
La salle de conférence est principalement utilisée pour les lancements de voitures d'exposition et les conférences. Les concepteurs ont utilisé le demi-cercle pour étendre la largeur de l'espace et ont disposé le film de plafond illuminé sur le dessus pour créer une intention "ouverte" dans l'espace intérieur limité.
La salle de conférence est principalement utilisée pour les lancements de voitures d'exposition et les conférences.
Les concepteurs ont utilisé le demi-cercle pour étendre la largeur de l'espace et ont disposé le film de plafond illuminé sur le dessus pour créer une intention "ouverte" dans l'espace intérieur limité. La salle de conférence est principalement utilisée pour les lancements de voitures d'exposition et les conférences.
Les concepteurs ont utilisé le demi-cercle pour étendre la largeur de l'espace et ont disposé le film de plafond illuminé sur le dessus pour créer une intention "ouverte" dans l'espace intérieur limité.
Ces parcours sinueux, hauts et bas sont modestement établis pour relier les différents espaces d'exposition et kiosques.
Au cours de la visite à pied, les visiteurs passeront par des actions telles que regarder, grimper, marcher, tourner, descendre, s'arrêter et regarder en arrière.
Une telle expérience spatiale, un microcosme de voyage en ville de montagne, permet aux gens de compléter par inadvertance l'expérience intéressante du comportement "regarder - visiter - vivre".
Les concepteurs ont laissé tout le toit nu, avec seulement quelques zones avec des cadres en acier pour fixer des lampes, des portes coulissantes, des rideaux métalliques, etc., ainsi que des cadres métalliques, une métaphore de l'arbre Ficus macrocarpa, pour offrir aux gens un confort, expérience d'assise stable.
Les concepteurs se sont également concentrés sur des matériaux spécifiques tels que le terrazzo, les carreaux faits à la main, les panneaux de bois massif, le métal, etc. afin de transmettre un sentiment de Chongqing : simple, direct et percutant.
Projet : La salle d'exposition de Mountain City
Client : Yanfeng
Société de conception : Studio DOTCOF
Équipe de conception : Chen Xi, Li Rong, Zhuang Haolai
Concepteur du projet : Li Rong
Conception MEP : Li Mu, Deng Peng
Entreprise de construction : Chongqing Meidejia Décoration Construction Co., LTD
Superficie : 520 m²
Terminé : 2022-06
Adresse : No.16 North Lihuan Road, district de Yubei, Chongqing, Chine
Photographe : LEIDU
Le studio DOTCOF a été créé par le designer Chen Xi en 2015 à Shanghai. En tant que studio de design innovant, ils s'engagent à explorer les possibilités de la relation personnes-espace dans chaque projet de design.
Pour chaque projet, Studio DOTCOF s'efforce de comprendre, de rechercher et de communiquer pleinement sur les besoins spécifiques des clients, les conditions du site, la technologie de construction, le budget du projet, etc., tout en offrant des réponses créatives et uniques à travers l'espace, les matériaux et l'éclairage.
v2com-newswire.com












L'accueil

































