L'ODJ Média

lodj





Un concours pour une petite ville du sud du Québec


le Samedi 12 Juin 2021

Marieville célèbre son passé en misant sur le futur



Comment se fait-il qu’existent, un peu partout au Québec, tant de salles de spectacles, musées et bibliothèques? La réponse est simple. Le gouvernement du Québec, qui subventionne la construction de tout bâtiment culturel, exige la tenue de concours d’architecture avant de délier les cordons de la bourse. La règle s’applique à toutes les municipalités et pas uniquement aux grandes villes.
 
C’est ainsi que de toutes petites communautés, n’ayant jamais entendu parler d’architecture contemporaine, se retrouvent soudainement avec des bâtiments conçus par les meilleurs architectes du Québec. C’est le cas d’une municipalité rurale de 10 000 habitants, située à une heure de Montréal. En juillet 2020, Marieville lançait un concours d’architecture visant à la doter d’une nouvelle bibliothèque. L’équipe d’Anne Carrier Architecture, bien connue pour ses interventions intégrées au paysage, remportait la mise.


Le contexte
 
Marieville, comme tant d’autres petites municipalités québécoises, possède une riche histoire tel qu’en témoignent encore aujourd’hui plusieurs édifices anciens et une imposante église de pierre, datant de 1920. Le lieu prévu pour le futur bâtiment correspond à l’emprise de l’ancienne bibliothèque, démolie en 2012, pour cause de contamination.
 
Le site est en étroite relation avec un parc centenaire, très prisé des résidents. On y retrouve de magnifiques arbres, un monument historique et un kiosque pouvant accueillir des spectacles en plein air. Les vestiges d’une ancienne église sont également présents, enfouis dans une zone soigneusement préservée en vue de fouilles archéologiques.
 
La rue principale de Marieville, avec ses quelques bâtiments d’époque, longe le parc situé à l’ouest de la future bibliothèque. Parallèle à cette rue, court le Ruisseau St-Louis, témoin lui aussi de l’histoire de la municipalité. Au cours des dernières années, Marieville lançait un certain nombre d’initiatives visant à renforcer l’émergence d’un pôle civique axé sur la future bibliothèque et son offre de services.
  
L’inspiration
 
La forme allongée de la future bibliothèque a été déterminée par la présence de la zone protégée et par l’exiguïté du terrain qui en découle. Le parc, certains édifices de la rue principale, le ruisseau ainsi que l’église et son parvis, tous ces éléments ont été pris en ligne de compte lors de l’élaboration du concept.
 
Le volume de la bibliothèque sera tronqué à la hauteur du rez-de-chaussée pour dégager la vue vers le parvis de l’église. L’introduction de cette diagonale, dans le plan, permettra l’aménagement d’une petite place triangulaire, à l’entrée de la bibliothèque. Elle constitue également un rappel subtil du tracé de la rue principale.
 
L’église servira de référence visuelle pour tous ceux et celles qui se dirigeront vers la bibliothèque en provenance de l’ouest. Dès l’approche, une autre référence historique accueillera les usagers. Un escalier sculptural sera visible de l’extérieur comme de l’intérieur, évoquant les silos à grain de cette région agricole.  
  
Le concept
 
Le concept adopté par les architectes, lors de la préparation des planches de concours, se résume en deux mots : transparence et ouverture, tout particulièrement le long de la façade ouest qui donnera sur le parc. Grâce au regroupement des aires de services, côté est, tous les espaces communs bénéficieront d’une vue sur les arbres du parc.
 
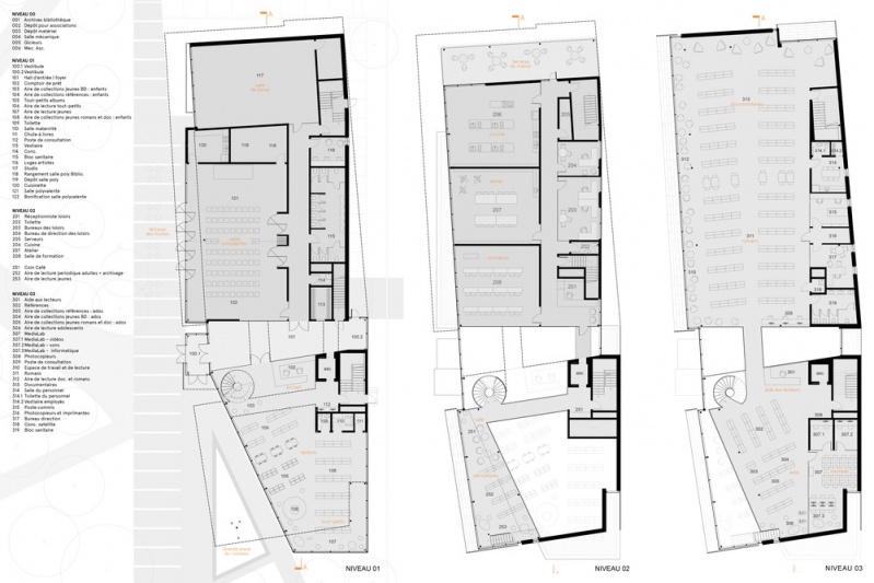
L’édifice, qui se veut résolument contemporain, s’articule en deux volumes de trois étages, reliés par un escalier, un ascenseur et deux passerelles. Au centre, un hall d’accueil tout en hauteur permettra de visualiser l’ensemble du bâtiment, tout en offrant des vues sur l’église, le parc et la rue principale.
 
Dès l’entrée, les usagers pourront se diriger soit vers la salle polyvalente et le studio de danse, à gauche, soit vers l’accueil de la bibliothèque et le coin des enfants, à droite. Un étage plus haut, côté nord, on retrouvera une cuisine, un atelier et un local de formation, dédiés à des activités communautaires. Côté sud, un café et une section périodiques ont été prévus au deuxième étage de l’espace bibliothèque. Le dernier étage du bâtiment sera entièrement occupé par la bibliothèque. On y trouvera les sections adultes et ados, les aires de lecture, le medialab et les bureaux du personnel.
 
Confinés depuis plus de dix ans au sous-sol de l’église, les usagers de la bibliothèque rêvent du jour où ils et elles pourront renouer avec le plaisir de disposer d’espaces aérés et ensoleillés. Lors du dévoilement du projet lauréat, la mairesse de Marieville, affirmait : « On veut que ce soit une bibliothèque, un lieu culturel, mais surtout un espace d'apprentissage et de découvertes. Nous avons été épatés par la luminosité et les prises de vue du bâtiment ainsi que son intégration dans l’environnement naturel du Parc Crevier. » 
    
Fiche technique
 

Projet : Bibliothèque de Marieville

Lieu : Marieville, Québec

Client : Ville de Marieville

Équipe lauréate : Anne Carrier architecture (AC/a), Lévis, Québec

Concepteurs/conceptrices : Anne Carrier, chargée de projet; Robert Boily, B. arch. / B. Sc.a.; Patricia Pronovost, architecte; Mathieu St-Amant, architecte

 
Nombre d’équipes participantes (1e étape) :

19

 
Équipes participantes (2e étape) :
 
  • Anne Carrier Architecture (équipe gagnante)
  • Atelier Big City et Cimaise
  • BGLA et EBA
  • Epigraphe, maison d’architecture 
Annonce de l’équipe lauréate : février 2021
 

Superficie : 1155 m2

Budget prévu : 6,5M$

Date d’ouverture prévue : Été 2023

 
À propos de Anne Carrier architecture (AC /a)

 

Fondée en 1992 par l’architecte Anne Carrier, la firme AC/a mise sur la créativité, la qualité et la pérennité en proposant des solutions réfléchies et sans artifice, en osmose avec les paysages naturels, culturels et urbains. Ses choix conceptuels, architecturaux, esthétiques et techniques convergent vers la création d’espaces où « lumière naturelle et transparence » s’imposent.

 

Récipiendaire de la prestigieuse Médaille du gouverneur général en architecture en 2016, l’agence s’est fait reconnaître pour la qualité de son travail et l’excellence de ses services ainsi que pour sa capacité à solutionner des problèmes complexes de manière simple, efficace et durable. Plus de 35 prix et distinctions lui ont été décernés au cours des dernières décennies.

 

La firme de Lévis, Québec, travaille présentement sur une autre bibliothèque, L’Octogone, à Montréal. Ce projet avait également fait l’objet d’un concours d’architecture.

 







Samedi 12 Juin 2021

Dans la même rubrique :
< >

Mercredi 6 Novembre 2024 - 09:02 Trump élected président

Coup de cœur | Musiczone | Last Hits | Brèves Culture & Loisir | Brèves Music | Playlist 212 Music


Bannière Réseaux Sociaux


Bannière Lodj DJ







LODJ24 TV
آخر الأخبار
جاري تحميل الأخبار...
BREAKING NEWS
📰 Chargement des actualités...

Inscription à la newsletter

Plus d'informations sur cette page : https://www.lodj.ma/CGU_a46.html
















Vos contributions
LODJ Vidéo